| Oznaka | Prostorija | Koeficijent | Brutto (m2) | Netto (m2) |
|---|---|---|---|---|
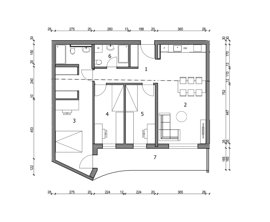
| 1 | ULAZ/GARD. | 1 | 8.77 | 8.77 |
| 2 | KUH./D.B./BLAG. | 1 | 27.20 | 27.20 |
| 3 | MASTER SOBA/WALK IN | 1 | 21.45 | 21.45 |
| 4 | KUPAONA | 1 | 4.83 | 4.83 |
| 5 | SPAVAĆA SOBA 1 | 1 | 9.99 | 9.99 |
| 6 | SPAVAĆA SOBA 2 | 1 | 9.99 | 9.99 |
| 7 | KUPAONA | 1 | 4.42 | 4.42 |
| Grijane prostorije | 86.65 | 86.65 | ||
| 8 | LOGGIA | 0.75 | 14.26 | 10.70 |
| 9 | SPREMIŠTE Sp44 | 1 | 7.28 | 7.28 |
| Negrijane prostorije | 21.54 | 17.98 | ||
| Sveukupna netto površina | 108.19 | 104.63 | ||
Tel:091 31 31 808
Email:info@entradaprojekt.hr