| Oznaka | Prostorija | Koeficijent | Brutto (m2) | Netto (m2) |
|---|---|---|---|---|
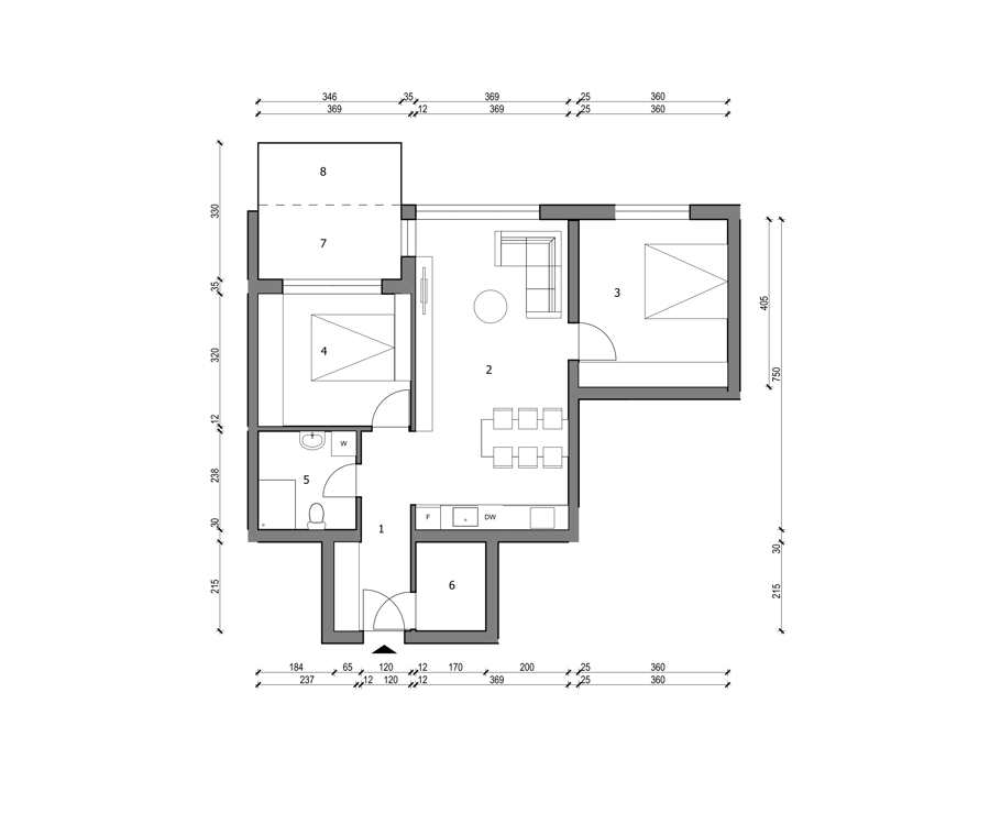
| 1 | ULAZ/GARD. | 1 | 7.74 | 7.74 |
| 2 | KUH./D.B./BLAG. | 1 | 26.02 | 26.02 |
| 3 | SPAVAĆA SOBA 1 | 1 | 14.75 | 14.75 |
| 4 | SPAVAĆA SOBA 2 | 1 | 11.81 | 11.81 |
| 5 | KUPAONA | 1 | 4.72 | 4.72 |
| 6 | GOSPODARSTVO | 1 | 5.05 | 5.05 |
| Grijane prostorije | 70.09 | 70.09 | ||
| 7 | LOGGIA | 0.75 | 6.23 | 4.67 |
| 8 | NATKRIVENI BALKON | 0.5 | 5.36 | 2.68 |
| Negrijane prostorije | 11.59 | 7.35 | ||
| Sveukupna netto površina | 81.68 | 77.44 | ||
Tel:091 31 31 808
Email:info@entradaprojekt.hr