| Oznaka | Prostorija | Koeficijent | Brutto (m2) | Netto (m2) |
|---|---|---|---|---|
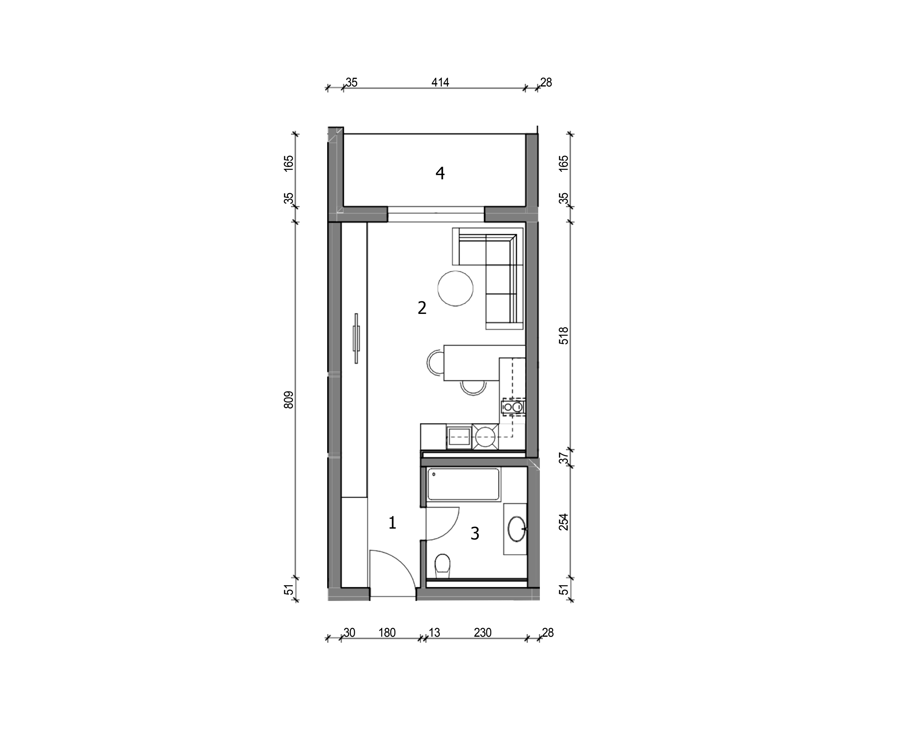
| 1 | ULAZ/GARD. | 1 | 4.97 | 4.97 |
| 2 | STUDIO | 1 | 22.45 | 22.45 |
| 3 | KUPAONA | 1 | 6.15 | 6.15 |
| Grijane prostorije | 33.57 | 33.57 | ||
| 4 | LOGGIA | 0.75 | 6.85 | 5.14 |
| 5 | SPREMIŠTE Sp26_Spr. | 1 | 4.40 | 4.40 |
| Negrijane prostorije | 11.25 | 9.54 | ||
| Sveukupna netto površina | 44.82 | 43.11 | ||
Tel:091 31 31 808
Email:info@entradaprojekt.hr