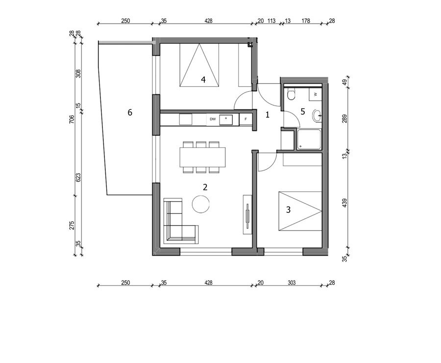
| Oznaka | Prostorija | Koeficijent | Brutto (m2) | Netto (m2) |
|---|---|---|---|---|
| 1 | ULAZ/GARD. | 1 | 5.17 | 5.17 |
| 2 | STUDIO | 1 | 26.63 | 26.63 |
| 3 | SPAVAĆA SOBA 1 | 1 | 13.30 | 13.30 |
| 4 | SPAVAĆA SOBA 2 | 1 | 13.02 | 13.02 |
| 5 | KUPAONA | 1 | 4.51 | 4.51 |
| Grijane prostorije | 62.63 | 62.63 | ||
| 6 | NATKRIVENI BALKON | 0.5 | 16.26 | 8.13 |
| Negrijane prostorije | 16.26 | 8.13 | ||
| Sveukupna netto površina | 78.89 | 70.76 | ||
Tel:091 31 31 808
Email:info@entradaprojekt.hr