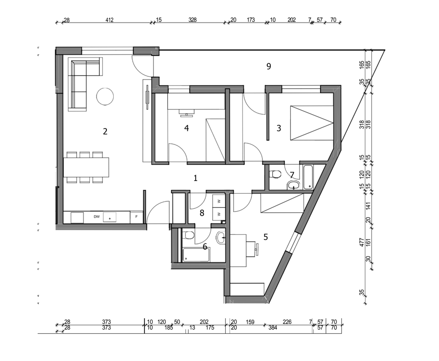
| Oznaka | Prostorija | Koeficijent | Brutto (m2) | Netto (m2) |
|---|---|---|---|---|
| 1 | ULAZ/GARD. | 1 | 10.89 | 10.89 |
| 2 | STUDIO | 1 | 31.52 | 31.52 |
| 3 | MASTER SOBA/WALK IN | 1 | 15.02 | 15.02 |
| 4 | SPAVAĆA SOBA 1 | 1 | 10.48 | 10.48 |
| 5 | SPAVAĆA SOBA 2 | 1 | 12.96 | 12.96 |
| 6 | KUPAONA | 1 | 3.24 | 3.24 |
| 7 | KUPAONA | 1 | 2.83 | 2.83 |
| 8 | VEŠERAJ | 1 | 2.47 | 2.47 |
| Grijane prostorije | 89.41 | 89.41 | ||
| 9 | NATKRIVENI BALKON | 0.5 | 18.36 | 9.18 |
| 10 | SPREMIŠTE Sp20 | 1 | 7.38 | 7.38 |
| Negrijane prostorije | 25.74 | 16.56 | ||
| Sveukupna netto površina | 115.15 | 105.97 | ||
Tel:091 31 31 808
Email:info@entradaprojekt.hr