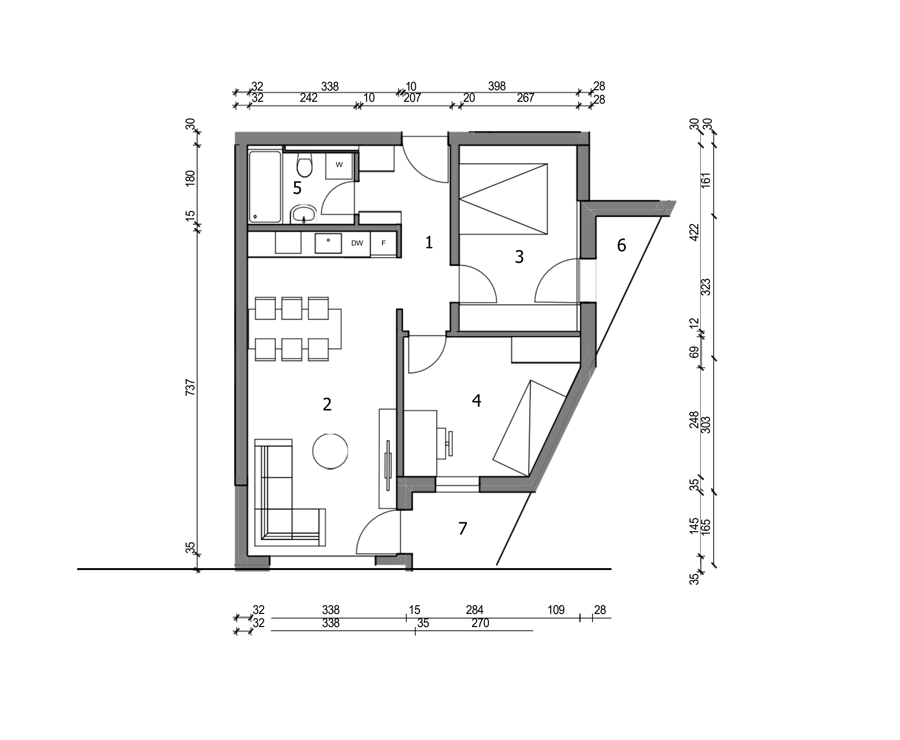
| Oznaka | Prostorija | Koeficijent | Brutto (m2) | Netto (m2) |
|---|---|---|---|---|
| 1 | ULAZ/GARD. | 1 | 6.41 | 6.41 |
| 2 | STUDIO | 1 | 24.86 | 24.86 |
| 3 | SPAVAĆA SOBA 1 | 1 | 11.82 | 11.82 |
| 4 | SPAVAĆA SOBA 2 | 1 | 11.39 | 11.39 |
| 5 | KUPAONA | 1 | 4.47 | 4.47 |
| Grijane prostorije | 58.95 | 58.95 | ||
| 6 | NATKRIVENI BALKON | 0.5 | 2.43 | 1.22 |
| 7 | LOGGIA | 0.75 | 3.80 | 2.85 |
| 8 | SPREMIŠTE Sp1_Spr | 1 | 2.98 | 2.98 |
| Negrijane prostorije | 9.21 | 7.05 | ||
| Sveukupna netto površina | 68.16 | 66.00 | ||
Tel:091 31 31 808
Email:info@entradaprojekt.hr