| Oznaka | Prostorija | Koeficijent | Brutto (m2) | Netto (m2) |
|---|---|---|---|---|
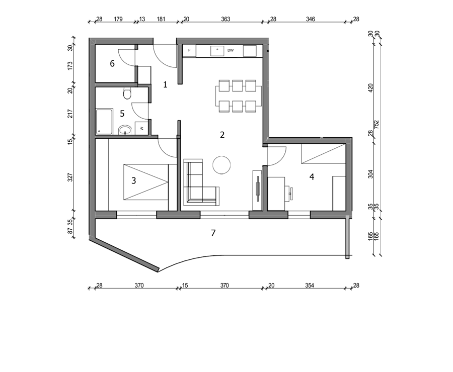
| 1 | ULAZ/GARD. | 1 | 6.00 | 6.00 |
| 2 | STUDIO | 1 | 27.47 | 27.47 |
| 3 | SPAVAĆA SOBA 1 | 1 | 11.97 | 11.97 |
| 4 | SPAVAĆA SOBA 2 | 1 | 10.66 | 10.66 |
| 5 | KUPAONA | 1 | 5.17 | 5.17 |
| 6 | GOSPODARSTVO | 1 | 2.97 | 2.97 |
| Grijane prostorije | 64.24 | 64.24 | ||
| 7 | LOGGIA | 0.75 | 19.98 | 14.99 |
| 8 | SPREMIŠTE Sp6_Spr | 1 | 2.97 | 2.97 |
| Negrijane prostorije | 22.95 | 17.96 | ||
| Sveukupna netto površina | 87.19 | 82.20 | ||
Tel:091 31 31 808
Email:info@entradaprojekt.hr