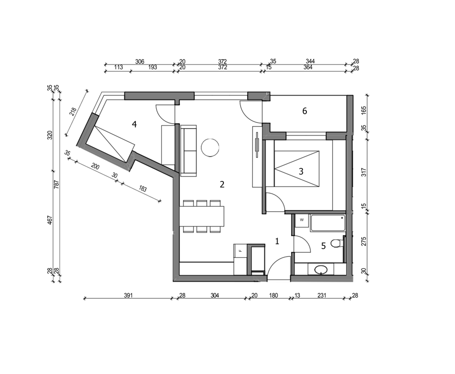
| Oznaka | Prostorija | Koeficijent | Brutto (m2) | Netto (m2) |
|---|---|---|---|---|
| 1 | ULAZ/GARD. | 1 | 4.88 | 4.88 |
| 2 | STUDIO | 1 | 28.47 | 28.47 |
| 3 | SPAVAĆA SOBA 1 | 1 | 11.43 | 11.43 |
| 4 | SPAVAĆA SOBA 2 | 1 | 9.37 | 9.37 |
| 5 | KUPAONA | 1 | 6.23 | 6.23 |
| Grijane prostorije | 60.38 | 60.38 | ||
| 6 | LOGGIA | 0.75 | 5.68 | 4.26 |
| 7 | SPREMIŠTE Sp4 | 1 | 2.87 | 2.87 |
| Negrijane prostorije | 8.55 | 7.13 | ||
| Sveukupna netto površina | 68.93 | 67.51 | ||
Tel:091 31 31 808
Email:info@entradaprojekt.hr