Oznaka | Prostorija | Koeficijent | Brutto (m2) | Netto (m2) |
---|---|---|---|---|
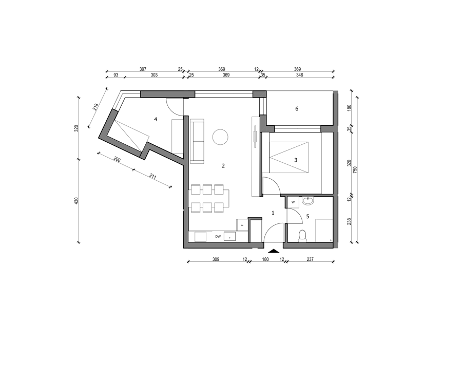
1 | ULAZ/GARD. | 1 | 4.00 | 4.00 |
2 | KUH./DB./BLAG. | 1 | 28.46 | 28.46 |
3 | SPAVAĆA SOBA 1 | 1 | 11.81 | 11.81 |
4 | SPAVAĆA SOBA 2 | 1 | 9.11 | 9.11 |
5 | KUPAONA | 1 | 6.53 | 6.53 |
Grijane prostorije | 59.91 | 59.91 | ||
6 | LOGGIA | 0.75 | 5.71 | 4.28 |
7 | SPREMIŠTE Sp30_Spr. | 1 | 2.97 | 2.97 |
Negrijane prostorije | 8.68 | 7.25 | ||
Sveukupna netto površina | 68.59 | 67.16 |
Tel:091 31 31 808
Email:info@entradaprojekt.hr